Promenada blok 3

Stan Broj: 4 3 sobe 52.62 m2

  • Home
  • Detalji plana

Osnovne informacije

  • Status: Rezervisan
  • Struktura: 3 sobe
  • Kvadratura: 52.62 m²
  • Sprat: VI Sprat
  • Lamela: III Lamela

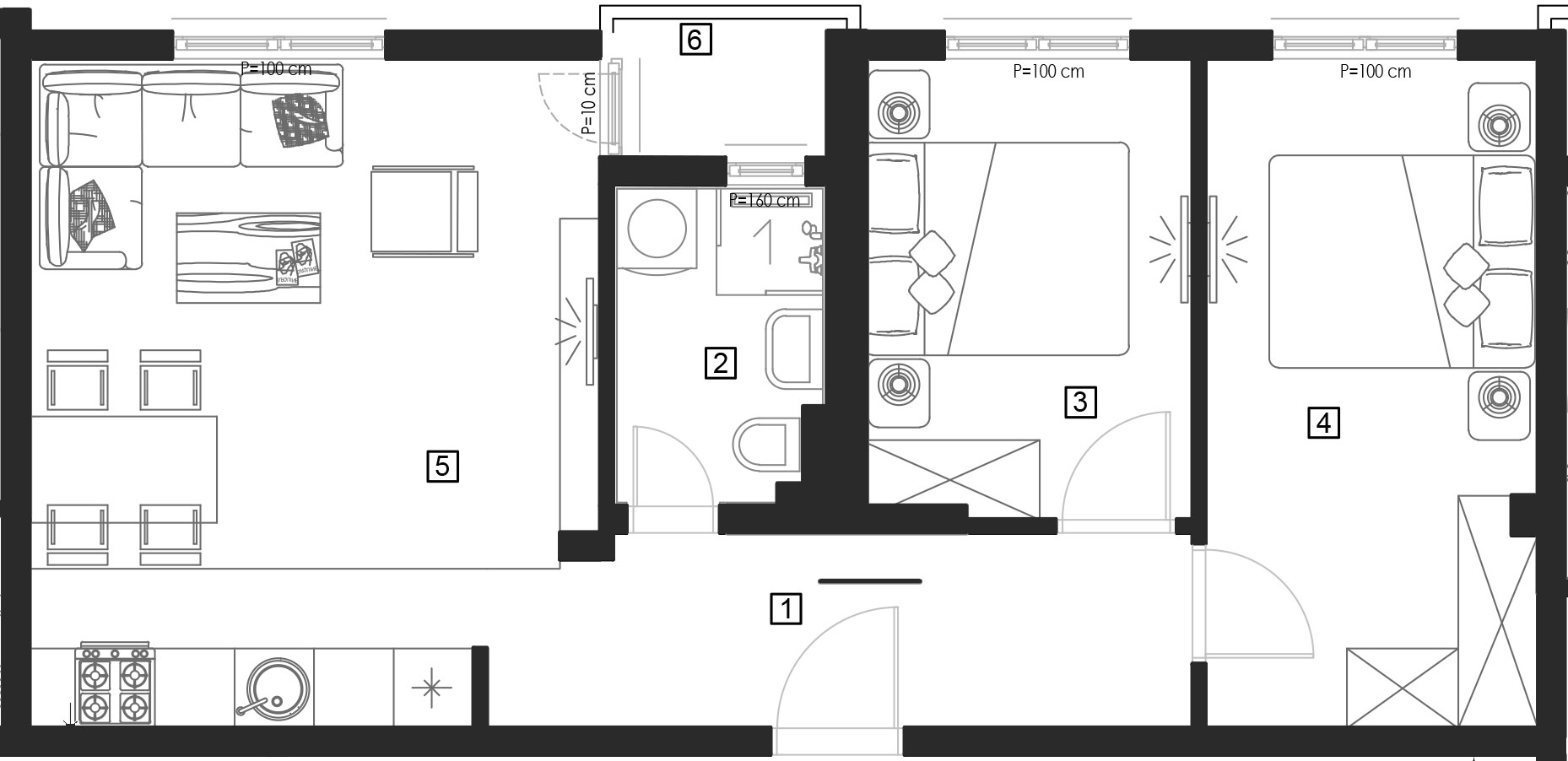
Struktura prostorija

# Prostorija m2
1 Hodnik 7.77
2 Kupatilo 3.87
3 Spavaća Soba 8.51
4 Spavaća Soba 12.63
5 Dnevna kuhinja i trpezarija 20.47
6 Lođa 1.29

Ukupna kvadratura

52.62

Trenutni status

Rezervisan

Dodatne pogodnosti

  • Lift
  • Parking
  • Centralno grijanje
  • Podzemna garaža
  • Toplotna Pumpa
Lokacija objekta Promenada blok 3, Kanal Dašnica Bijeljina
Podijeli:

Kontakt

Za sva pitanja smo tu Vama na raspolaganju

O nama

Mihajlović invest doo je kompanija osnovana 2017.godine u gradu Bijeljina sa ciljem da razvije moderan koncept stanovanja uz primjenu najviših standarda u projektovanju i gradnji.

© Mihajlović Invest. Sva prava zadržana.