Promenada blok 4

Stan Broj: 1 3 sobe 76.01 m2

  • Home
  • Detalji plana

Osnovne informacije

  • Status: Slobodan
  • Struktura: 3 sobe
  • Kvadratura: 76.01 m²
  • Sprat: VIII Sprat
  • Lamela: IV Lamela

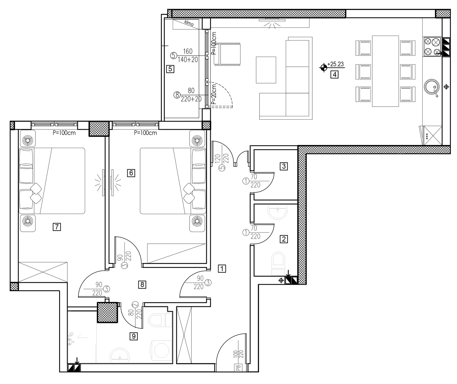
Struktura prostorija

# Prostorija m2
1 Hodnik 9.24
2 Toalet 3.00
3 Ostava 2.12
4 Dnevna kuhinja i trpezarija 27.99
5 Lođa 3.14
6 Spavaća Soba 12.11
7 Spavaća Soba 13.04
8 Degažman 3.26
9 Kupatilo 5.19

Ukupna kvadratura

76.01

Trenutni status

Slobodan

Dodatne pogodnosti

  • Lift
  • Parking
  • Centralno grijanje
  • Podzemna garaža
  • Toplotna Pumpa
Lokacija objekta Promenada blok 4, Kanal Dašnica Bijeljina
Podijeli:

Kontakt

Za sva pitanja smo tu Vama na raspolaganju

O nama

Mihajlović invest doo je kompanija osnovana 2017.godine u gradu Bijeljina sa ciljem da razvije moderan koncept stanovanja uz primjenu najviših standarda u projektovanju i gradnji.

© Mihajlović Invest. Sva prava zadržana.