Promenada blok 4

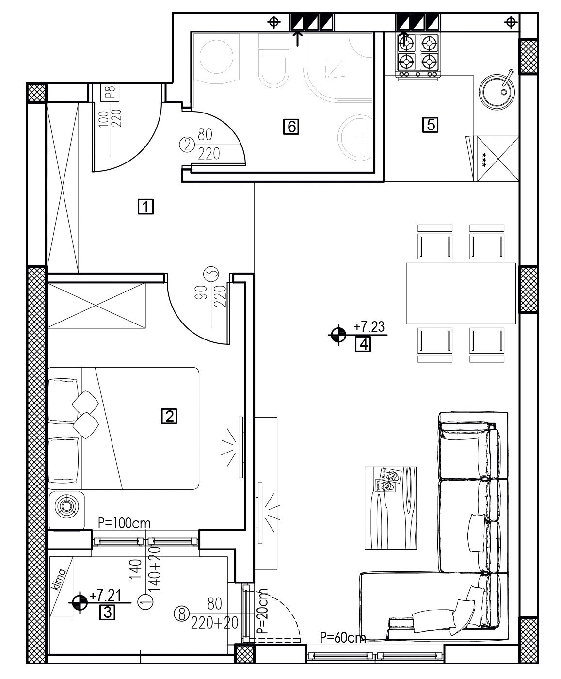
Stan Broj: 9 2 sobe 43.94 m2

  • Home
  • Detalji plana

Osnovne informacije

  • Status: Rezervisan
  • Struktura: 2 sobe
  • Kvadratura: 43.94 m²
  • Sprat: II Sprat
  • Lamela: IV Lamela

Struktura prostorija

# Prostorija m2
1 Hodnik 5.37
2 Spavaća Soba 8.55
3 Lođa 2.97
4 Dnevna soba sa trpezarijom 21.06
5 Kuhinja 3.50
6 Kupatilo 4.52

Ukupna kvadratura

43.94

Trenutni status

Rezervisan

Dodatne pogodnosti

  • Lift
  • Parking
  • Centralno grijanje
  • Podzemna garaža
  • Toplotna Pumpa
Lokacija objekta Promenada blok 4, Kanal Dašnica Bijeljina
Podijeli:

Kontakt

Za sva pitanja smo tu Vama na raspolaganju

O nama

Mihajlović invest doo je kompanija osnovana 2017.godine u gradu Bijeljina sa ciljem da razvije moderan koncept stanovanja uz primjenu najviših standarda u projektovanju i gradnji.

© Mihajlović Invest. Sva prava zadržana.