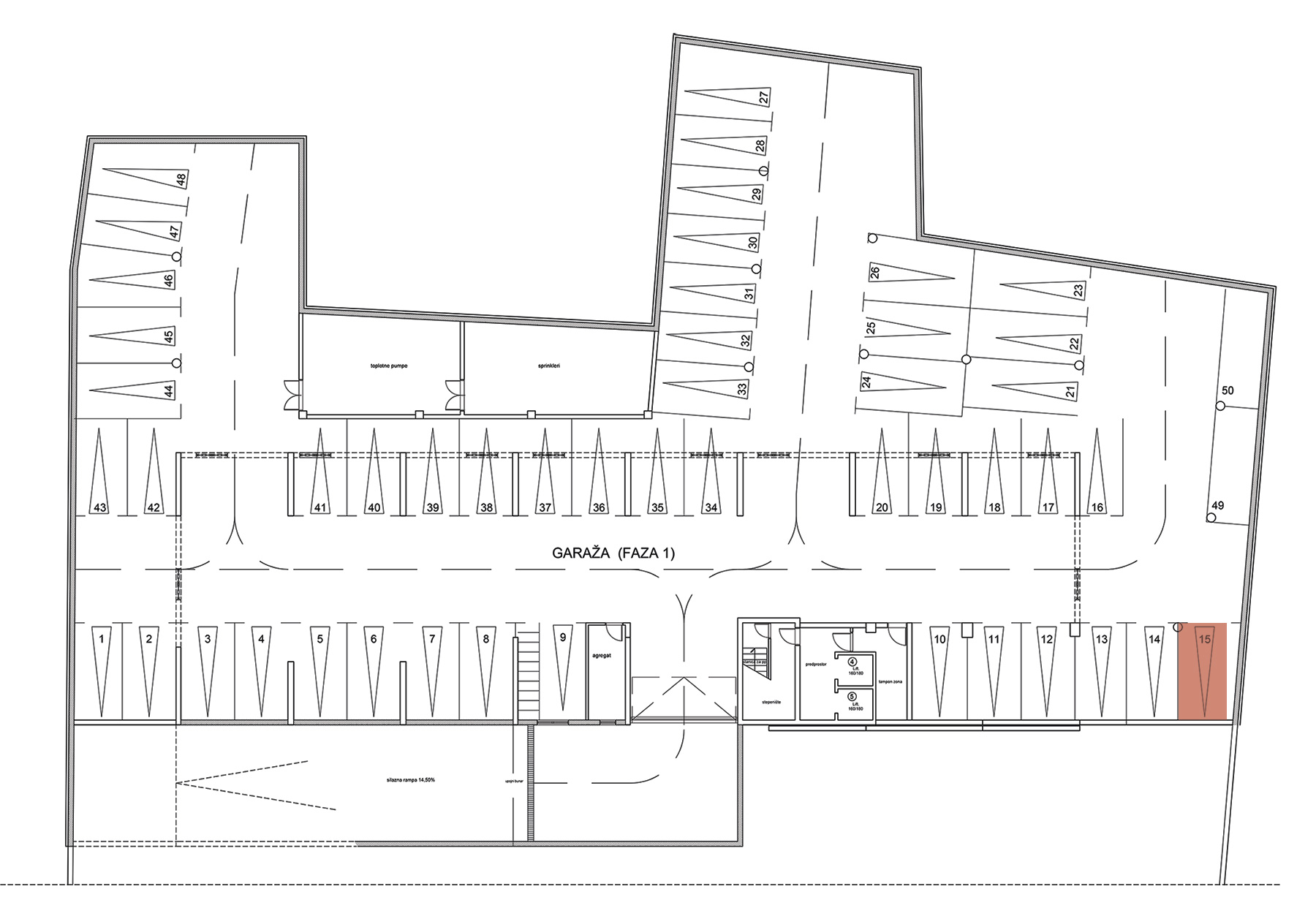
Garden Blok 1

Garaža Broj: 15 Garaža 10.00 m2

  • Home
  • Detalji plana

Osnovne informacije

  • Status: Slobodan
  • Struktura: Garaža
  • Kvadratura: 10.00 m²
  • Sprat: Garaža
  • Lamela: I Lamela

Struktura prostorija

# Prostorija m2
1 Garaža 10.00

Ukupna kvadratura

10.00

Trenutni status

Slobodan

Dodatne pogodnosti

  • Podzemna garaža
Lokacija objekta Garden Blok 1, Filipa Višnjića Bijeljina
Podijeli:

Kontakt

Za sva pitanja smo tu Vama na raspolaganju

O nama

Mihajlović invest doo je kompanija osnovana 2017.godine u gradu Bijeljina sa ciljem da razvije moderan koncept stanovanja uz primjenu najviših standarda u projektovanju i gradnji.

© Mihajlović Invest. Sva prava zadržana.