Garden Blok 1

Stan Broj: 8 2 sobe 35.17 m2

  • Home
  • Detalji plana

Osnovne informacije

  • Status: Slobodan
  • Struktura: 2 sobe
  • Kvadratura: 35.17 m²
  • Sprat: VII Sprat
  • Lamela: I Lamela

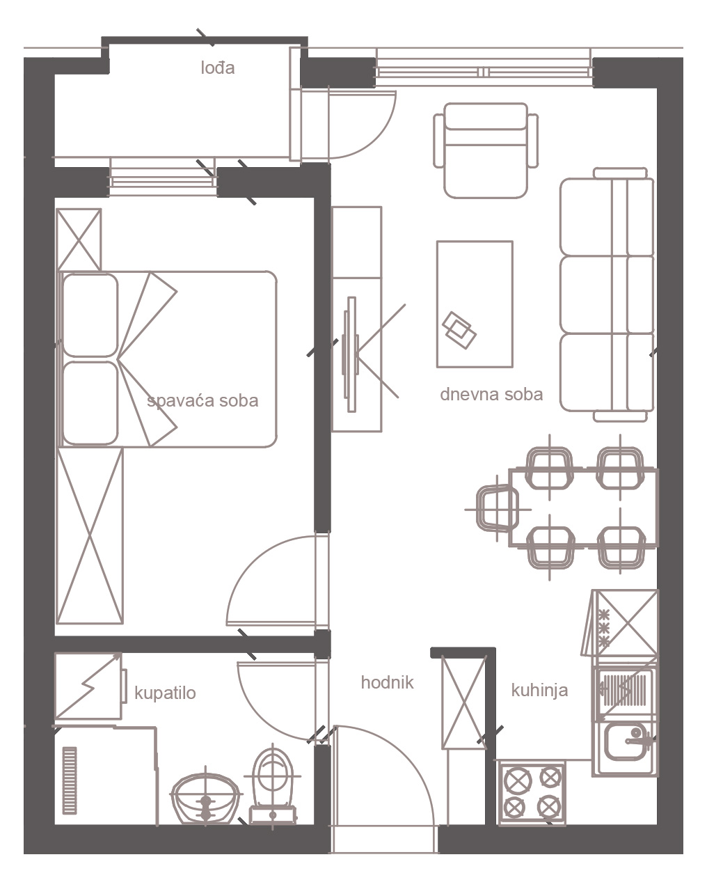
Struktura prostorija

# Prostorija m2
1 Hodnik 2.20
2 Kuhinja 4.12
3 Dnevna soba 13.80
4 Lođa 2.06
5 Spavaća Soba 9.67
6 Kupatilo 3.84

Ukupna kvadratura

35.17

Trenutni status

Slobodan

Dodatne pogodnosti

  • Lift
  • Parking
  • Centralno grijanje
  • Podzemna garaža
  • Toplotna Pumpa
Lokacija objekta Garden Blok 1, Filipa Višnjića Bijeljina
Podijeli:

Kontakt

Za sva pitanja smo tu Vama na raspolaganju

O nama

Mihajlović invest doo je kompanija osnovana 2017.godine u gradu Bijeljina sa ciljem da razvije moderan koncept stanovanja uz primjenu najviših standarda u projektovanju i gradnji.

© Mihajlović Invest. Sva prava zadržana.