Promenada blok 3

Stan Broj: 7 2 sobe 46.56 m2

  • Home
  • Detalji plana

Osnovne informacije

  • Status: Rezervisan
  • Struktura: 2 sobe
  • Kvadratura: 46.56 m²
  • Sprat: Prizemlje
  • Lamela: III Lamela

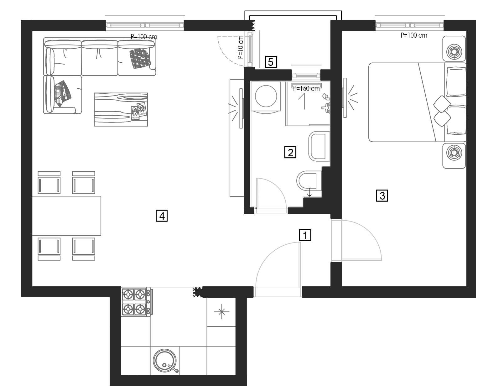
Struktura prostorija

# Prostorija m2
1 Hodnik 2.83
2 Kupatilo 4.16
3 Spavaća Soba 13.47
4 Dnevna kuhinja i trpezarija 26.49
5 Lođa 1.37

Ukupna kvadratura

46.56

Trenutni status

Rezervisan

Dodatne pogodnosti

  • Lift
  • Parking
  • Centralno grijanje
  • Podzemna garaža
  • Toplotna Pumpa
Lokacija objekta Promenada blok 3, Kanal Dašnica Bijeljina
Podijeli:

Kontakt

Za sva pitanja smo tu Vama na raspolaganju

O nama

Mihajlović invest doo je kompanija osnovana 2017.godine u gradu Bijeljina sa ciljem da razvije moderan koncept stanovanja uz primjenu najviših standarda u projektovanju i gradnji.

© Mihajlović Invest. Sva prava zadržana.